No.008176-15545 福島市渡利字高谷14-6
      | 住所 | 福島市渡利字高谷14-6 | 賃料 | 50,000円 | 
|---|---|---|---|
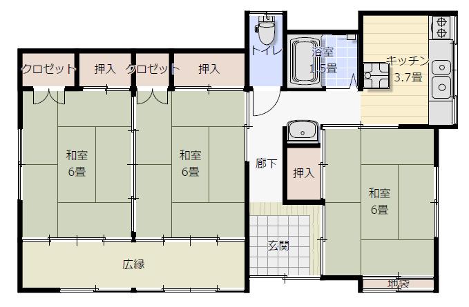
| 部屋番号 | 1 | 間取り | 3K | 
| 礼金 | - | 敷金 | - | 
| 共益費 | なし | 駐車料 | 込み | 
| 詳細情報 | |||
|---|---|---|---|
| 入居日 | 即日 | 種別 | 一戸建 | 
| 構造 | 木造 | 築年数 | 昭和36年 6月 | 
| 損害保険 | 保険加入必要 | ペット | ペット不可 | 
| 設備 | ガス:プロパン 水道:公営 排水:都市下水 トイレ:水洗 | ||
| 交通機関 | バス / 福島交通 館 まで徒歩 6 分 | ||
| 学区 | 渡利小学校 / 渡利中学校 | ||
| 取引態様 | 仲介 | ||
| 整理番号 | |||
| 備考 | 別棟に4.5畳サイズの物置付 | ||
※仲介手数料は法定手数料となります。詳しい内容はお問い合わせ下さい。

他の写真
      
      
      
      
      
      
      
      
      
      
      
		
    