No.008077-15701 福島市野田町5丁目8-55
      | 住所 | 福島市野田町5丁目8-55 | 賃料 | 54,000円 | 
|---|---|---|---|
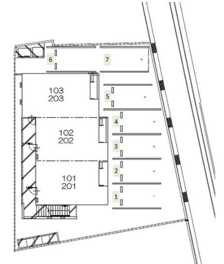
| 部屋番号 | 101 | 間取り | 1LDK | 
| 礼金 | 1ヶ月 | 敷金 | 1か月 | 
| 共益費 | 3500円 | 駐車料 | 3300円 | 
| 詳細情報 | |||
|---|---|---|---|
| 入居日 | 2025.8.下旬 | 種別 | アパート | 
| 構造 | 木造 | 築年数 | 平成26年 4月 | 
| 損害保険 | 保険加入必要 | ペット | ペット不可 | 
| 設備 | ガス:プロパン 水道:公営 排水:都市下水 トイレ:水洗 | ||
| 交通機関 | バス / 福島交通バス「田中前」 まで徒歩 1 分 | ||
| 学区 | 森合小学校 / 福島第四中学校 | ||
| 取引態様 | 仲介 | ||
| 整理番号 | |||
| 備考 | ★LDK9帖 洋室3.1帖(32.92㎡)
 ★火災保険別途18,000円/2年★安心入居サポート加入必須 2年 16,500円 ★保証会社加入要、初回月額総額100%、毎月総額1% *短期解約違約金有(契約開始日より1年未満) ★消毒施工、別途17,600円★宅内配管のみ・固定電話・FAX・インターネット引込の際は契約前にご確認ください。 ★敷金預かりがない場合は契約時にルームクリーニング費用として36,850円(税込)をお預かりします。 ☆デジタルキー初期設定料として契約時3,300円 ☆更新事務手数料有22,000円(税込)/2年毎 *法定手数料【負担区分】貸主0%:借主100% *図面と現況に相違がある場合は現況優先  | 
              ||
※仲介手数料は法定手数料となります。詳しい内容はお問い合わせ下さい。

他の写真
      
      
      
      
      
      
      
      
      
      
      
		
    