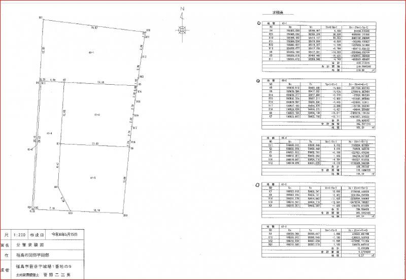
No.006371 福島市岡部字岡部41-1
| 住所 | 福島市岡部字岡部41-1 | 価格 | 1,060万円 |
|---|---|---|---|
| 坪単価 | 16.0万円 | 地目 | 宅地 |
| 土地面積 | 219.50㎡ / 66.39坪 | ||
| 詳細情報 | |||
|---|---|---|---|
| 建ぺい率 | 60% | 容積率 | 200% |
| 分割(購入後) | 可 | 現状 | 更地 |
| 都市計画 | 市街化区域 | ||
| 用途地域 | 第1種中高層住居専用地域 | ||
| 道路位置 | 南側 4.5m | ||
| セットバック | 不要 | ||
| 設備 | ガス:プロパン 水道:公営 排水:浄化槽(合併) | ||
| 交通機関 | バス / 岡部 まで徒歩 2 分 | ||
| 学区 | 岡山小学校 / 第三中学校 | ||
| 引渡し | 即日 | ||
| 取引態様 | 売主 | ||
| 整理番号 | A-461 | ||
| 備考 | |||
※仲介手数料は法定手数料となります。詳しい内容はお問い合わせ下さい。

他の写真
