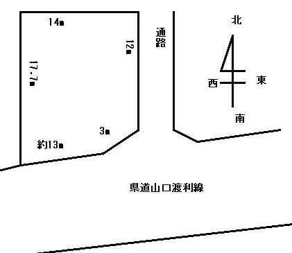
No.004960 福島市山口字砥石1-14
| 住所 | 福島市山口字砥石1-14 | 価格 | 150万円 |
|---|---|---|---|
| 坪単価 | 2.0万円 | 地目 | 雑種地 |
| 土地面積 | 239.28㎡ / 72.38坪 | ||
| 詳細情報 | |||
|---|---|---|---|
| 建ぺい率 | 70% | 容積率 | 200% |
| 分割(購入後) | 可 | 現状 | その他 |
| 都市計画 | 市街化調整区域 | ||
| 用途地域 | 指定なし | ||
| 道路位置 | 南側 10.0m | ||
| セットバック | 不要 | ||
| 設備 | ガス:- 水道:- 排水:- | ||
| 交通機関 | - / - | ||
| 学区 | - / - | ||
| 引渡し | 相談 | ||
| 取引態様 | 一般媒介 | ||
| 整理番号 | |||
| 備考 | 用途:太陽光発電用地・資材置き場・駐車場 | ||
※仲介手数料は法定手数料となります。詳しい内容はお問い合わせ下さい。

他の写真
