No.011452 伊達市保原町西町163-4
住所 | 伊達市保原町西町163-4 | 価格 | 2,600万円 |
---|---|---|---|
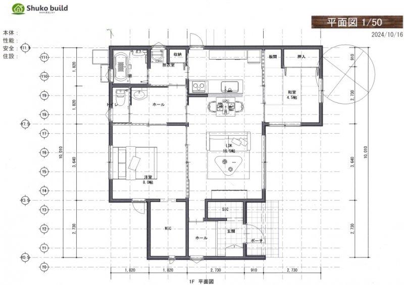
種別 | 新築物件 | 間取り | 2LDK |
土地面積 | 185.03㎡ / 55.97坪 | 建物面積 | 77.35㎡ / 23.39坪 |
詳細情報 | |||
---|---|---|---|
建ぺい率 | 60% | 容積率 | 200% |
駐車場 | 2台 | 構造 | 木造 |
築年数 | 令和7年 4月 | 建替・増改築 | 可 |
都市計画 | 市街化区域 | ||
用途地域 | 第1種住居地域 | ||
道路位置 | 西側 6.0m / 南側 6.0m | ||
設備 | ガス:オール電化 水道:公営 排水:浄化槽(合併) トイレ:水洗 | ||
交通機関 | 電車 / 阿武隈急行線 保原駅 まで徒歩 17 分 | ||
学区 | 保原小学校 / 桃陵中学校 | ||
引渡し | 相談 | ||
取引態様 | 代理販売 | ||
整理番号 | |||
備考 | 秀光ビルドのセットプラン案です。
土地+建物+設備+地盤調査+カーテン+エアコン1台+太陽光発電設備のコミコミ価格。 2LDK(和室4.5帖、洋室8帖、LDK16.5帖) 人気の平家プラン!2階建ても勿論建築可能です! 建売ではないので、間取り変更は勿論、このプランのままで設備内容も自分で選択できます! |
※仲介手数料は法定手数料となります。詳しい内容はお問い合わせ下さい。

他の写真