No.011125 福島市八木田字神明24-4
      | 住所 | 福島市八木田字神明24-4 | 価格 | 5,600万円 | 
|---|---|---|---|
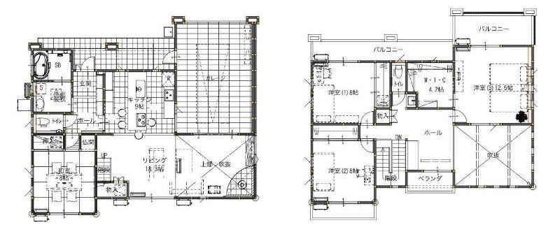
| 種別 | 間取り | 4LDK | |
| 土地面積 | 377.09㎡ / 114.06坪 | 建物面積 | 192.39㎡ / 58.19坪 | 
| 詳細情報 | |||
|---|---|---|---|
| 建ぺい率 | 60% | 容積率 | 200% | 
| 駐車場 | 4台 | 構造 | 木造 | 
| 築年数 | 平成30年 2月 | 建替・増改築 | 可 | 
| 都市計画 | 市街化区域 | ||
| 用途地域 | 第2種住居地域 | ||
| 道路位置 | 北側 13.0m | ||
| 設備 | ガス:都市ガス 水道:公営 排水:都市下水 トイレ:水洗 | ||
| 交通機関 | バス / 北の内 まで徒歩 1 分 | ||
| 学区 | 吉井田小学校 / 岳陽中学校 | ||
| 引渡し | 相談 | ||
| 取引態様 | 仲介 | ||
| 整理番号 | AZK八木田 | ||
| 備考 | ■全居室収納■ウォークインクローゼット
 ■太陽光発電システム■全居室エアコン ■モニター付インターホン ■ダブルロックドア■省エネ給湯器■室内物干し ■クッションフロア■下水道■都市ガス ■シーリングファン■ウッドデッキ■縁側 ■人感センサー付照明■ダウンライト ■間接照明 ※図面と現況に相違がある場合は現況優先  | 
              ||
※仲介手数料は法定手数料となります。詳しい内容はお問い合わせ下さい。
他の写真
      
      
      
      
      
      
      
      
      
      
		
    
