No.010712 伊達市霊山町山野川
| 住所 | 伊達市霊山町山野川 | 価格 | 600万円 |
|---|---|---|---|
| 種別 | 中古物件 | 間取り | 5LDK |
| 土地面積 | 929.00㎡ / 281.02坪 | 建物面積 | 460.00㎡ / 139.15坪 |
| 詳細情報 | |||
|---|---|---|---|
| 建ぺい率 | 60% | 容積率 | 200% |
| 駐車場 | 15台 | 構造 | 鉄骨造 |
| 築年数 | 平成2年 1月 | 建替・増改築 | 可 |
| 都市計画 | 非線引き | ||
| 用途地域 | 指定なし | ||
| 道路位置 | 南側 10.0m / 西側 4.0m | ||
| 設備 | ガス:プロパン 水道:公営 排水:浄化槽(個別) トイレ:簡易水洗 | ||
| 交通機関 | バス / 山野川ふれあいセンタ- まで徒歩 11 分 | ||
| 学区 | 川俣小学校 / 川俣中学校 | ||
| 引渡し | 相談 | ||
| 取引態様 | 専任媒介 | ||
| 整理番号 | 2396 | ||
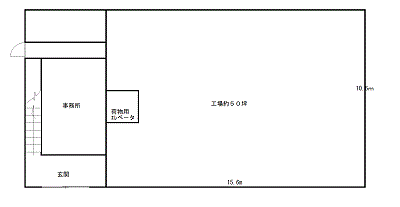
| 備考 | 1F約50坪工場及び倉庫
2F居宅5LDK 駐車場約15台 令和8年1/18価格改定 |
||
※仲介手数料は法定手数料となります。詳しい内容はお問い合わせ下さい。

他の写真
