No.001051-1462 福島市栄町6-4
| 住所 | 福島市栄町6-4 | 賃料 | 457,600円 |
|---|---|---|---|
| 部屋番号 | 1F | 種類 | 店舗 |
| 礼金 | 457,600円 | 敷金/保証金 | 800,000円 |
| 共益費 | 22,000円 | 損害保険 | 保険加入必要 |
| 駐車料 | 駐車場無し | ||
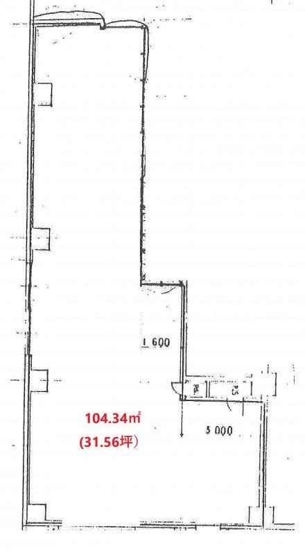
| 使用面積 | 104.34㎡ / 31.56坪 | ||
| 詳細情報 | |||
|---|---|---|---|
| 入居日 | 相談 | 種別 | 店舗 |
| 構造 | 鉄筋コンクリート造 | 築年数 | 昭和53年 12月 |
| 設備 | ガス:都市ガス 水道:公営 排水:都市下水 トイレ:水洗 | ||
| 交通機関 | 電車 / 福島駅東口 まで徒歩 2 分 | ||
| 取引態様 | 仲介 | ||
| 整理番号 | |||
| 備考 | 福島駅東口の正面にある南條ビル。駅前の1階路面店舗。以前は理容室に長年利用いただいておりました。駅を利用する人向けの店舗や理容室はもちろん、事務所系店舗、飲食なら軽飲食がおすすめです。
掲載写真は原状回復前の写真になりますので、現況優先とさせていただきます。 |
||
※仲介手数料は法定手数料となります。詳しい内容はお問い合わせ下さい。

他の写真
