No.000188 福島市南矢野目
| 住所 | 福島市南矢野目 | 価格 | 1,780万円 |
|---|---|---|---|
| 種別 | 中古物件 | 駐車場 | 4台 |
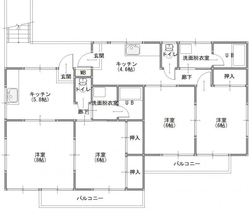
| 土地面積 | 194.18㎡ / 58.73坪 | 建物面積 | 164.78㎡ / 49.84坪 |
| 全世帯数 | 4世帯 | ||
| 間取種類 | 全戸2K | ||
| 詳細情報 | |||
|---|---|---|---|
| 構造 | 木造 | 築年数 | 平成6年 3月 |
| 設備 | ガス:プロパン 水道:公営 排水:浄化槽(個別) | ||
| 交通機関 | バス / 【福商前】 まで徒歩 6 分 | ||
| 引渡し | 相談 | ||
| 取引態様 | 専任媒介 | ||
| 整理番号 | |||
| 備考 | 〇東側に公園隣接
〇全戸、エアコン・温水洗浄便座・浴室追い焚き機能付き 〇平成24年11月:建物外壁塗装工事済み 〇表面利回り:10.17% 〇令和7年度・固都税額:61,126円 ※現況と間取図が異なる場合、現況が優先されます |
||
※仲介手数料は法定手数料となります。詳しい内容はお問い合わせ下さい。

他の写真
